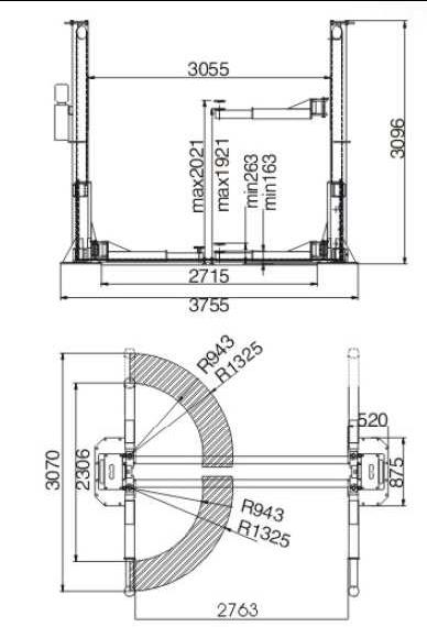
UB-T6A 5.5ton two post lift (Release Manually)
UB-T6B 6.8ton two post lift (Release Manually)
Features:
Driven by double hydraulic cylinders, make it ascent and descent smoothly.
Self-locking protective mechanism.
Chain-type elevating system.
With strong capability, especially applys to imported cross-country cars.

